WORKS
販売物件・施工事例
Zengyouzaka Project
物件概要
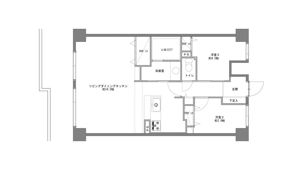
物件名 Zengyouzaka Project 所在地 神奈川県藤沢市善行坂 築年月 平成2年5月 専有面積 59.67㎡ 間取り 2LDK 周辺環境
CONTACT
お問い合わせ
各種お問い合わせはこちらよりお願いいたします。
販売物件・施工事例
物件概要
| 物件名 | Zengyouzaka Project |
|---|---|
| 所在地 | 神奈川県藤沢市善行坂 |
| 築年月 | 平成2年5月 |
| 専有面積 | 59.67㎡ |
| 間取り | 2LDK |
周辺環境
お問い合わせ
各種お問い合わせはこちらよりお願いいたします。