WORKS
販売物件・施工事例
Minamiosawa Project
物件概要
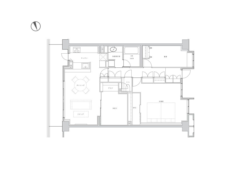
物件名 Minamiosawa Project 築年月 平成14年3月 専有面積 100.05㎡ 間取り 3LDK 周辺環境
CONTACT
お問い合わせ
各種お問い合わせはこちらよりお願いいたします。
販売物件・施工事例
物件概要
| 物件名 | Minamiosawa Project |
|---|---|
| 築年月 | 平成14年3月 |
| 専有面積 | 100.05㎡ |
| 間取り | 3LDK |
周辺環境
お問い合わせ
各種お問い合わせはこちらよりお願いいたします。