WORKS
販売物件・施工事例
Kichijoji Project
物件概要
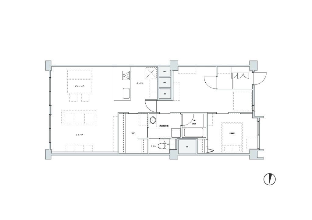
物件名 Kichijoji Project 築年月 昭和46年2月 専有面積 82.76㎡ 間取り 1LDK 周辺環境
CONTACT
お問い合わせ
各種お問い合わせはこちらよりお願いいたします。
販売物件・施工事例
物件概要
| 物件名 | Kichijoji Project |
|---|---|
| 築年月 | 昭和46年2月 |
| 専有面積 | 82.76㎡ |
| 間取り | 1LDK |
周辺環境
お問い合わせ
各種お問い合わせはこちらよりお願いいたします。